Segment domu dwulokalowego w cichej okolicy
Pruszków Pokaż na mapie ›
Dodane: Czwartek, 09 Kwiecień, 2026 23:10
1 390 000 zł
8910 zł/m2
Szczegóły ogłoszenia
- Kategoria: Domy / Sprzedaż
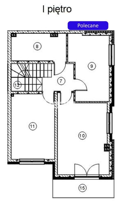
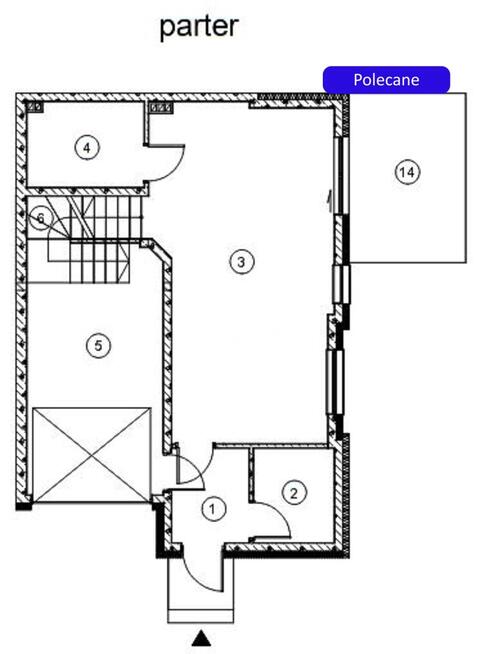
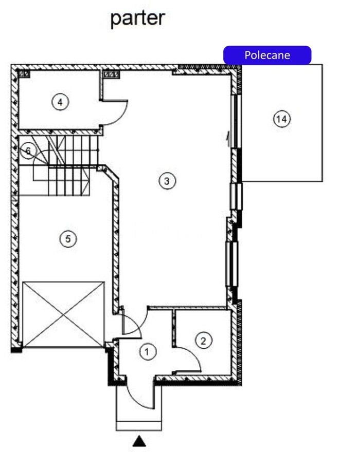
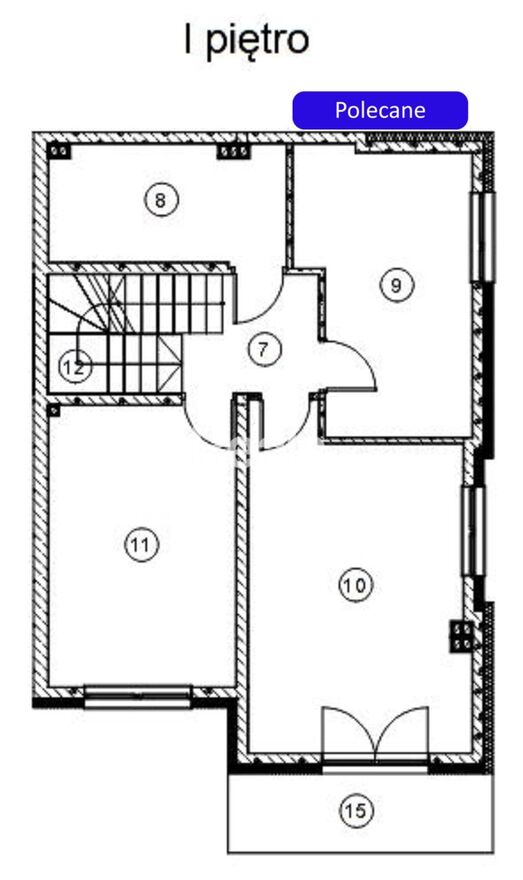
- Powierzchnia:156 m2
- Liczba pokoi:5 i więcej pokoi
- Pow. działki:425 m2
- Rynek:Pierwotny
- Rok budowy:2026
- Sprzedaż:Pośrednik
- Cena: 1 390 000 zł / 8910 zł/m2
Opis oferty
W Pruszkowie na Bąkach dwa nowe sgmenty w stanie deweloperskim, wdomu dwulokalowym. Segment 1 - 175,40 m2 cena 1 530 tys. zł, segment
2 - 156,93 m2 cena 1 390 tys. zł. Ściany zewnętrzne dwuwarstwowe -
z pustaków silikatowych gr. 18 cm z izolacją termiczną
(ociepleniem) styropianem gr. 16 cm. Wysokość kondygnacji około
268cm. Drzwi wejściowe zewnętrzne drewniane lub drewnopodobne
ocieplane firmy DERPAL. Kolor okien wewnątrz biały zewnątrz szary.
Wewnętrzna instalacja wody zimnej i ciepłej obejmuje wykonanie
kompletnego rozprowadzenia pionowego i poziomego rur PE zgrzewanych.
W kotłowni ułożony gres/glazura na podłodze i części ścian.
Garaż w bryle budynku. Brama garażowa np. firmy HORMAN z napędem.
Jest dostępny światłowód firmy Skynet.
Zapraszam do zakupu.
--------------------------------------------------------------------------------------
Skontaktuj się z nami w celu zapoznania się ze szczegółami oferty.
Jeżeli nie udało Ci się znaleźć oferty spełniającej Twoich
oczekiwań, zapraszamy do kontaktu bezpośredniego. Nie wszystkie
nasze oferty widoczne są w internecie.
Informujemy, iż pomimo wszelkich starań, które poczyniliśmy, aby
zaprezentować rzetelne informacje o nieruchomości, przedstawione
informacje otrzymaliśmy od właściciela oraz innych osób
współpracujących w procesie sprzedaży i mogą one wymagać
weryfikacji. Przedstawione materiały wizualne mają charakter
poglądowy i stanowią jedynie materiał pomocniczy. Niniejsze
ogłoszenie nie stanowi oferty w rozumieniu kodeksu cywilnego i ma
charakter informacyjny.
Niniejsze ogłoszenie jest własnością Reals Nieruchomości lub
podmiotów współpracujących. Wszelkie prawa zastrzeżone.
Kopiowanie, rozpowszechnianie oraz korzystanie z niniejszych
materiałów w jakikolwiek inny sposób wykraczający poza dozwolony
użytek określony przepisami ustawy z 4 lutego 1994 r. o prawie
autorskim i prawach pokrewnych (Dz. U. 1994, nr 24 poz. 83 z późn.
zm.) bez pisemnej zgody Reals Nieruchomości lub podmiotów
współpracujących jest zabronione i może stanowić podstawę
odpowiedzialności cywilnej oraz karnej. Przedstawione materiały
stanowią tajemnicę przedsiębiorstwa Reals Nieruchomości lub
podmiotów współpracujących w rozumieniu ustawy z dnia 16 kwietnia
1993 r. o zwalczaniu nieuczciwej konkurencji (Dz. U. z 2003 r., Nr
153, poz. 1503 z późn. zm.).
Powiadom o podobnych ogłoszeniach
Lokalizacja: Pruszków
Kategoria: Nieruchomości » Domy » Sprzedaż
Cena: od 1181500 zł do 1598500 zł Powierzchnia : od 133 m2 do 179 m2
Chcę otrzymywać powiadomienia o nowych ofertach
- Wypromuj ogłoszenie
- Zgłoś naruszenie
- Drukuj ulotkę
- Edytuj/usuń ogłoszenie
- Udostępnij ogłoszenie
- Dodaj na Facebook




















